one equals two

O projecto partiu de uma solicitação específica por parte do requerente: Fazer uma casa com duas casas.

O requerente, nosso cliente, é uma família numerosa, composta por duas partes: Avó e um dos seus filhos; Outra filha, marido e seus três filhos – netos da avó.

Pretendia-se, portanto, criar um edifício único que pudesse englobar dois espaços de habitação independentes, para que cada uma das partes tivesse a sua privacidade e uso autónomo mas que, ainda assim, conseguissem ter um contacto diário e imediato sempre que quisessem.

O lugar de intervenção era um edifício no centro da cidade de Braga, composto por duas fracções: Um espaço de comércio e serviços, que funciona como oficina mecânica, no piso térreo; E um espaço de habitação com entrada ao nível térreo, mas com as áreas de habitar no piso superior.

O projecto deveria incidir apenas na fracção habitacional pertencente ao cliente.

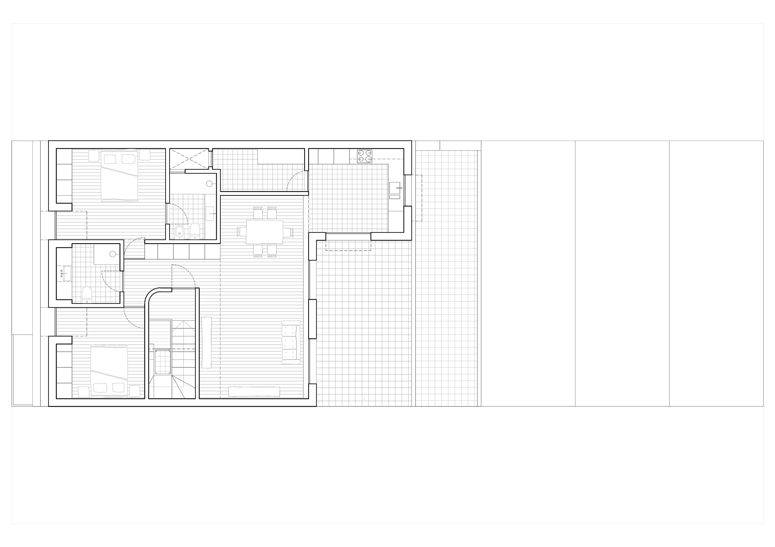
Esta fracção tinha ainda acesso a uma área nas águas furtadas, partindo já do piso superior, de umas escadas de serviço no interior da habitação. Este espaço era utilizável, mas de pé-direito curto e apenas com abertura para o terraço, do lado de trás da construção, a Nascente.

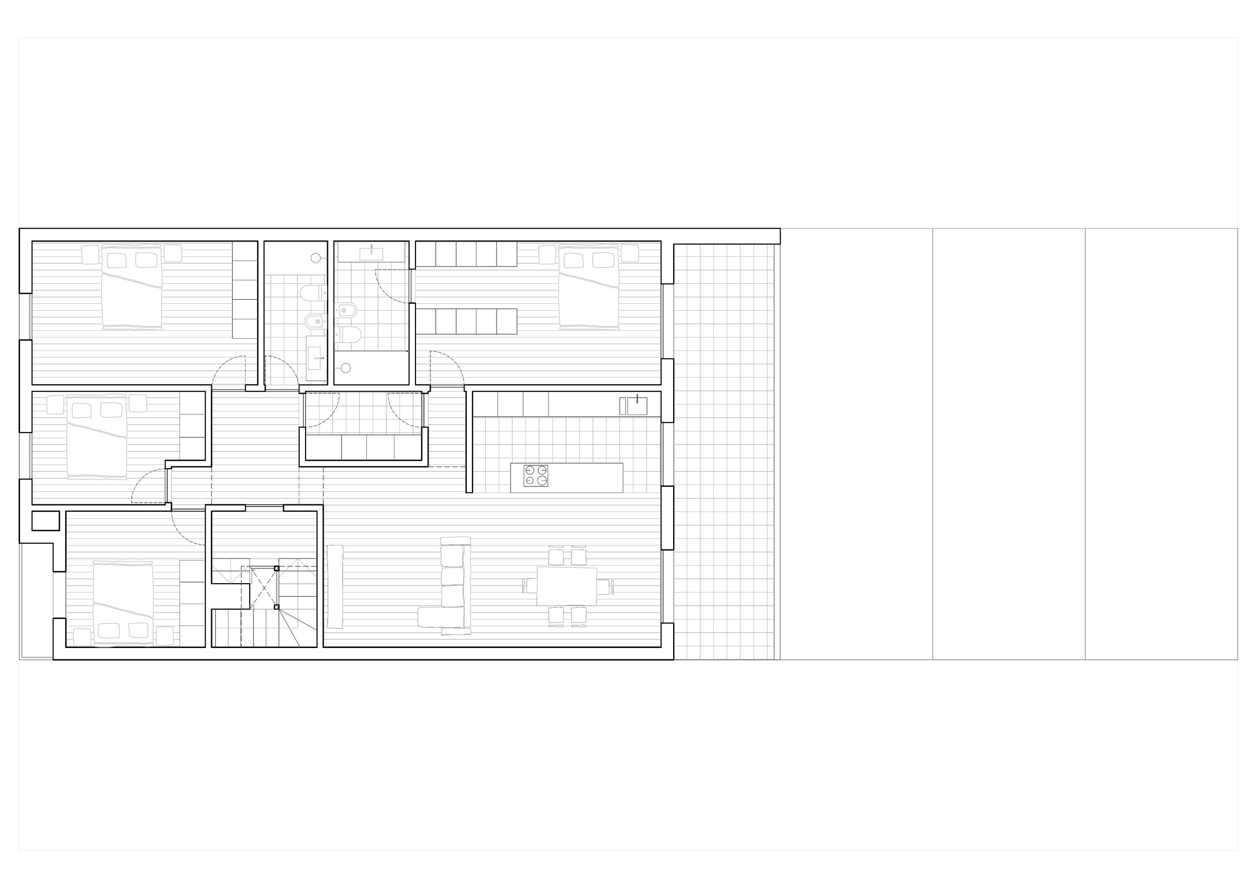
A estratégia de projecto, para se dividir a fracção em dois “apartamentos”, foi preservar ao máximo o piso de habitação já existente, e intervir no último piso, das águas furtadas, para transformação num espaço de habitação.

Além de uma renovação geral em todas as áreas e fachadas, fizeram-se fundamentalmente duas intervenções: Reconstrução da cobertura do edifício, subindo o pé-direito e transformando este espaço num T2 independente, com aberturas a Nascente e Poente; E a reformulação do acesso vertical através de escadas, aos dois espaços habitacionais, criando apenas um núcleo de acesso, em vez de dois separados, como existia inicialmente.

The project stemmed from a specific request from the client: to create a house with two houses.

The client is a large family composed of two groups: The grandmother and one of her sons; And another daughter, her husband, and their three children — the grandmother’s grandchildren.

The aim was therefore to design a single building capable of accommodating two independent living spaces, allowing each household to maintain privacy and autonomous use while still enabling immediate and daily contact whenever desired.

The intervention site was an existing building in the centre of Braga, comprising two units: A commercial and service space operating as a mechanical workshop on the ground floor; And a residential unit with an entrance at ground level but with the main living areas located on the upper floor.

The project focused solely on the residential unit owned by the client.

This unit also had access to an attic area, reached from the upper floor via a service staircase within the dwelling. The space was usable but had limited headroom and only one opening towards the rear terrace, on the Eastern side of the building.

The project strategy for dividing the unit into two “apartments” was to preserve the existing main living floor as much as possible and to intervene primarily on the attic level, converting it into a new residential space.

In addition to a general refurbishment of all interior areas and façades, two main interventions were carried out: The reconstruction of the building’s roof, increasing the ceiling height and transforming the attic into an independent two-bedroom apartment with openings to the East and West; And the reconfiguration of the vertical circulation, creating a single access core to serve both residential units instead of the two separate staircases that previously existed.


programa | category

habitação bifamiliar | two-family-home

data | date

2021 - 2025

cliente | client / contexto | context

privado | private

área | area

289 m2

localização | location

Braga, Portugal

estado | fase

concluído | finished

engenharia | engineering

estrutura de LSF | LSF structure: Ruvalty
outros projectos | other projects: E2+ Engenharia

construção | construction

estrutura de LSF | LSF structure: D`aço
restantes trabalhos | other projects: CrescentiObrigatório

fotografia | photography

Alexandra Brites

Category
Housing /Habitação
Tags
inicio